Nos avis clients
Nos avis clients
0

NANCY Jeanne d'Arc - Appartement 3 pièces avec balcons, garage, cave

Nancy (54000)
Réf : 5093

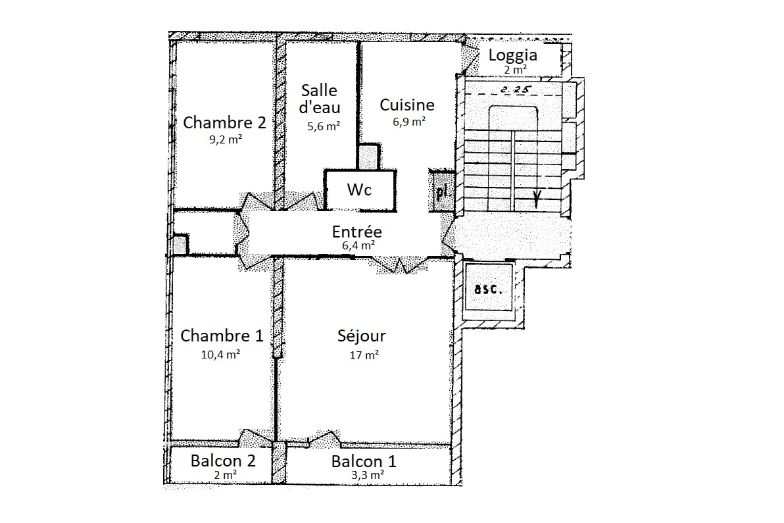
Trop tard ! VENDU. Exclusivité - NANCY au 286 rue Jeanne d'Arc. Au 5eme étage (sur 6) avec ascenseur, appartement 3 pièces 58 m² composé d'une entrée, un séjour avec accès balcon, cuisine avec loggia, salle de bains, deux chambres dont une avec balcon. Vue dégagée, lumineux, agencement fonctionnel. GARAGE individuel à l'arrière du batiment et Cave inclus. A rénover entièrement. Idéal investissement locatif ou premier achat. Complexe universitaire Artem à 10min à pied. Arret de Tram et bus à quelques minutes à pied. Classe énergie E. Charges de copropriété 1647€/an chauffage collectif inclus (avec répartiteurs individuels). Copropriété de 22 lots principaux. Honoraires charge vendeur inclus. Réf. 5093. Contacter Sébastien LEJEUNE au 03 83 30 83 23 ou 06 52 86 32 22. Visite virtuelle disponible. Toutes nos annonces sur www.immoconseil-debever.com

découvrir le bien
Prix du bien 98 000 €
Pièce(s) 3
Chambre(s) 2

Caractéristiques du bien

Caractéristiques Valeurs
Code postal 54000
Surface habitable (m²) 58 m²
Surface loi Carrez (m²) 57,68 m²
Nombre de chambre(s) 2
Nombre de pièces 3
Etage 5
Nb de salle de bains 1
Nombre de garage 1
Cave OUI
Année de construction 1965

Infos financières

Caractéristiques Valeurs
Prix de vente 98 000 €
Les honoraires d'agence seront intégralement à la charge du vendeur  
Charges 137 €
Taxe foncière annuelle 990 €

Localisationdu bien

  • Commerces et santé
  • Loisirs
  • Ecoles
  • Transports
  • Pratique